DarkHouse is a multi-disciplinary practice that spans lighting design, architectural consultancy, and commercial production design.
Lighting Design
Lighting design is our original craft. We understand light as a design tool and ask: how can we use light – over time – to change form, be that on stage, in architecture or event design? Whilst theatre remains our core discipline for lighting design, DarkHouse is now deeply engaged in spatial lighting design for the built environment, in sculptural lighting design and museum lighting design.
Theatre Services Design
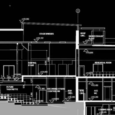
DarkHouse specializes in theatre design and audio visual services for auditoriums, live events and museum spaces. Whilst originally lighting design specialists, DarkHouse has grown into a full-service technical design consultancy, whose strengths lie in its creative collaboration. Building on our years of experience in theatre and events, DarkHouse now provides technical and design advice on theatres, auditoriums and live music venues, as well as AV design for educational and multi-use spaces. We design and write technical specifications for performance lighting, audio, vision and control systems. We also offer industry consultation for pre-design services. Importantly, its principal consultants remain active practitioners in the theatre and events industry, with keen insight into what the industry wants and needs today.
Philosophy
Our aim is to develop unique projects, unique objects and unique designs that inspire us first before we deliver them to you, be that for stage, for festivals, for the built environment, for corporate clients or for other artists. To do this we seek out talented collaborators to teach us new things and develop new ideas; we seek out new technologies to do things differently; and finally, we make sure that the things we do know, we do really well.





















































